The Cascade Home

Home Features:
1. Security system/ Central Vac.
2. Ogee edge granite kitchen counter tops
3. Wood floors 1st floor carpet 2nd floor & Ceramic tile
4.Entertainment center bump out (not shown) equip for 6.1  
surround sound and digital cable with phone jack  for
DSL/Broadband Internet
5. Custom designed Victorian  brick chimney  
6. Large master bed room suite with tray ceiling
7. Circular driveway
8. Tray ceilings in dining room/ master bedroom
9. 7" baseboards with upgraded window and door trim.
Also crown mldgs.
10. Antique carriage house garage door (not shown)  
11. Stainless steel kitchen appliances
12. Laundry room on 1st.  Floor.
13. LPI floor joist system.
14. Roughed out for bath room in lower level.
15. Heated Garage.
16. Central Air Conditioning

Interested in this plan please contact me at the above link
FRONT ELEVATION
REAR ELEVATION
FIRST FLOOR PLAN
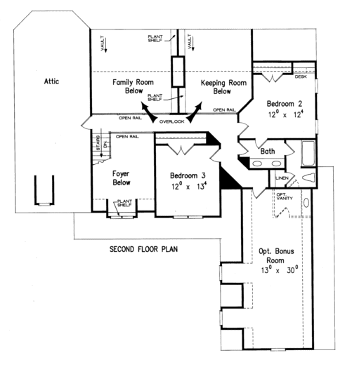
SECOND FLOOR PLAN
“Jason  is extremely knowledgeable
at building!. He has made the process
as painless as possible. I  would
never hire anyone else.”
Ray
Colchester, CT.
FRONT RENDERING